Saville Stainless
SS/RB Wall Recessed Hand Rinse Unit
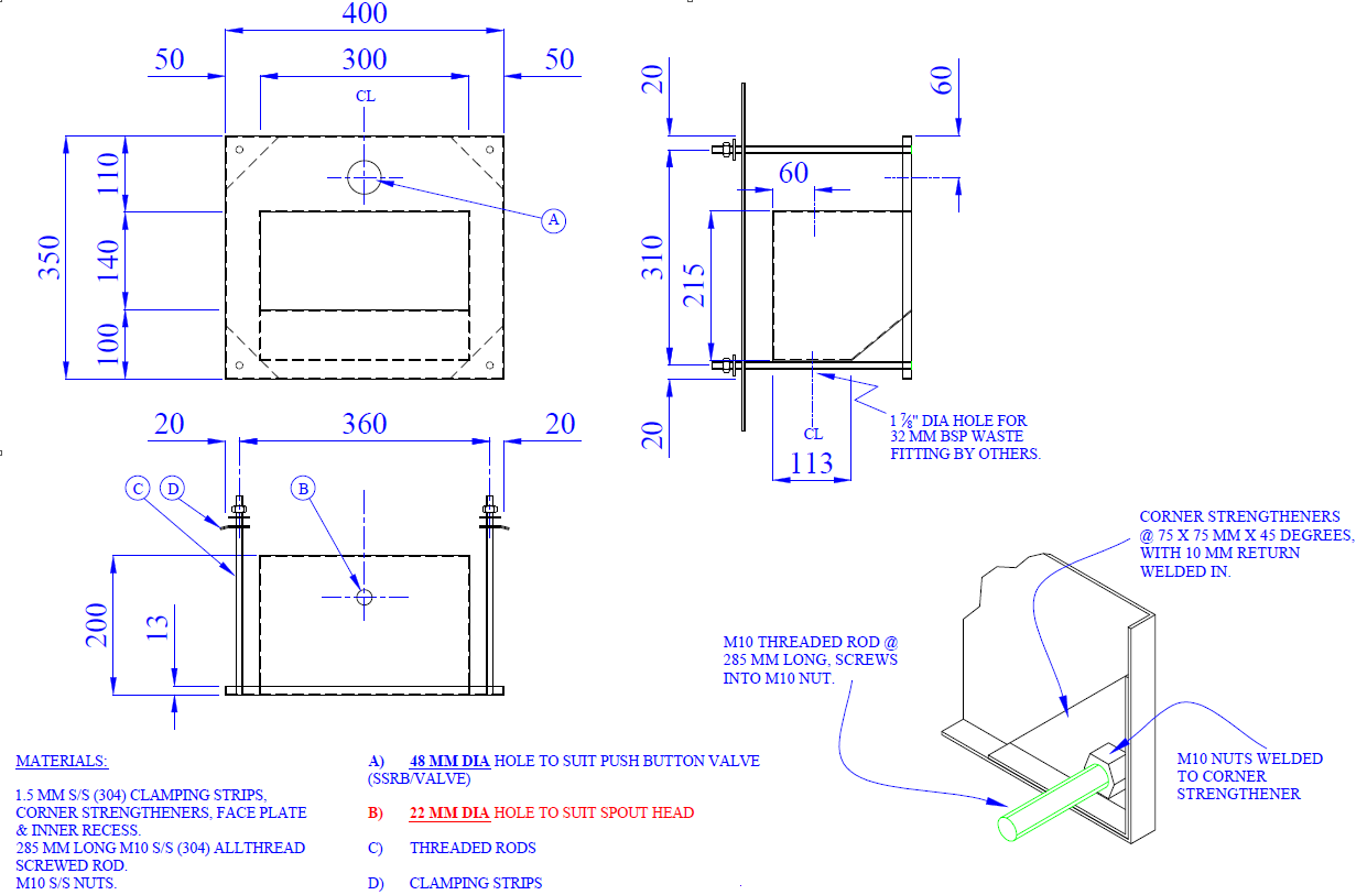
SS/RB Wall Recessed Hand Rinse Unit
SKU:
Regular price
£744.00 GBP
Regular price
Sale price
£744.00 GBP
Unit price
per
Shipping calculated at checkout.
Couldn't load pickup availability
SS/RB 400 x 350mm stainless steel recessed hand rinse unit with a 32mm BSP standard flush grated waste fitting and complete with a TIMED delayed control push valve for use with a pre mixed or cold water supply - MADE TO ORDER
- Threaded Bar & Clamping Plates Included
- Wall Recessed

